Terug
Gepubliceerd op 03/02/2026

2026_GR_00075 - BZ Wegtracé voor wegenis OMV_2025017349 door Abram NV te Zwijndrecht en Melsele - Goedkeuring

Gemeenteraad
di 27/01/2026 - 19:30 Raadzaal
Goedgekeurd

Samenstelling

Aanwezig

Marc Van de Vijver, burgemeester; Katrien Claus, schepen; Boudewijn Vlegels, schepen; Inge Brocken, schepen; Lien Van Dooren, schepen; Laura Staut, schepen; Jeroen Verhulst, schepen; Kris Smet, schepen; Anke Heyrman, schepen; Danny Van Hove, schepen; Dimitri Van Laere, schepen; Antoine Denert, raadslid; Denise Melis-De Lamper, raadslid; Filip Vercauteren, raadslid; Jos Stassen, raadslid; Marleen Van Hauteghem, raadslid; Ingeborg De Meulemeester, raadslid; Tina Van Havere, raadslid; Ronny Hiel, raadslid; Jan Van de Perre, raadslid; Bert Verbraeken, raadslid; Tom Roskam, raadslid; Stijn De Munck, raadslid; Hilde Maes, raadslid; Nadia Othman, raadslid; Veerle Beernaert, raadslid; Els Eeckhaoudt, raadslid; Steven Vervaet, raadslid; Koen Maes, raadslid; Katleen De Schepper, raadslid; Rudi Hendrikx, raadslid; Walter Van de Vyver, raadslid; Koen Maris, raadslid; Berlinda De Cleen, raadslid; Bram Massar, raadslid; Leentje Van Laere, raadslid; Jamie Kerremans, raadslid; Dries Van Wouwe, raadslid; Pieter-Jan Certyn, raadslid; Bert Roosens, raadslid; Ayoubi Benali, raadslid; Ziggy De Koster, raadslid; Tijs Van Vynckt, algemeen directeur; Victor Catry, voorzitter Gemeenteraad - raadslid

Secretaris

Tijs Van Vynckt, algemeen directeur

Voorzitter

Victor Catry, voorzitter Gemeenteraad - raadslid

Stemming op het agendapunt

2026_GR_00075 - BZ Wegtracé voor wegenis OMV_2025017349 door Abram NV te Zwijndrecht en Melsele - Goedkeuring

Aanwezig

Marc Van de Vijver, Katrien Claus, Boudewijn Vlegels, Inge Brocken, Lien Van Dooren, Laura Staut, Jeroen Verhulst, Kris Smet, Anke Heyrman, Danny Van Hove, Dimitri Van Laere, Antoine Denert, Denise Melis-De Lamper, Filip Vercauteren, Jos Stassen, Marleen Van Hauteghem, Ingeborg De Meulemeester, Tina Van Havere, Ronny Hiel, Jan Van de Perre, Bert Verbraeken, Tom Roskam, Stijn De Munck, Hilde Maes, Nadia Othman, Veerle Beernaert, Els Eeckhaoudt, Steven Vervaet, Koen Maes, Katleen De Schepper, Rudi Hendrikx, Walter Van de Vyver, Koen Maris, Berlinda De Cleen, Bram Massar, Leentje Van Laere, Jamie Kerremans, Dries Van Wouwe, Pieter-Jan Certyn, Bert Roosens, Ayoubi Benali, Ziggy De Koster, Tijs Van Vynckt, Victor Catry
Stemmen voor 36
Marc Van de Vijver, Katrien Claus, Boudewijn Vlegels, Inge Brocken, Stijn De Munck, Lien Van Dooren, Laura Staut, Koen Maes, Jeroen Verhulst, Bram Massar, Leentje Van Laere, Dries Van Wouwe, Hilde Maes, Kris Smet, Anke Heyrman, Koen Maris, Filip Vercauteren, Bert Roosens, Dimitri Van Laere, Danny Van Hove, Antoine Denert, Ronny Hiel, Els Eeckhaoudt, Marleen Van Hauteghem, Jan Van de Perre, Bert Verbraeken, Jos Stassen, Veerle Beernaert, Tina Van Havere, Denise Melis-De Lamper, Nadia Othman, Ayoubi Benali, Pieter-Jan Certyn, Steven Vervaet, Ingeborg De Meulemeester, Victor Catry
Stemmen tegen 7
Walter Van de Vyver, Tom Roskam, Berlinda De Cleen, Rudi Hendrikx, Jamie Kerremans, Ziggy De Koster, Katleen De Schepper
Onthoudingen 0
Blanco stemmen 0
Ongeldige stemmen 0
2026_GR_00075 - BZ Wegtracé voor wegenis OMV_2025017349 door Abram NV te Zwijndrecht en Melsele - Goedkeuring 2026_GR_00075 - BZ Wegtracé voor wegenis OMV_2025017349 door Abram NV te Zwijndrecht en Melsele - Goedkeuring

Motivering

Inhoudelijke toelichting

OMV_2025017349-IJ

Aanvrager: ABRAM NV, Kapellestraat 117, 8020 Oostkamp
Ontvangstdatum: 28 april 2025
Uiterste beslissingsdatum: 17 februari 2026
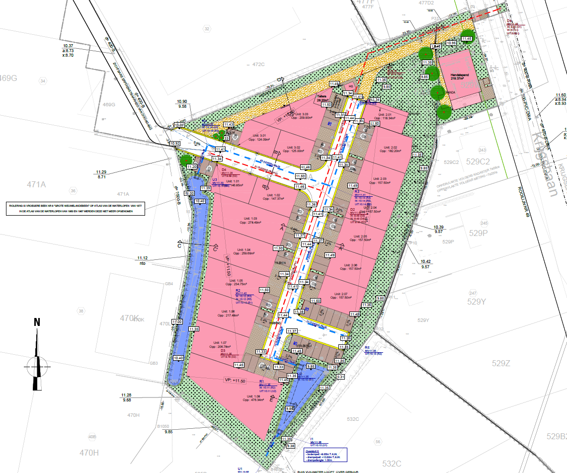
Bouwplaats: Krijgsbaan 241, 2070 Zwijndrecht
Onderwerp: slopen van de bestaande bebouwing en het bouwen van nieuwe bedrijfsverzamelgebouwen, handelspand en hoogspanningscabine inclusief wegeniswerken. 

Volgende adviesinstanties verleenden advies:

  • Onroerend Erfgoed - geen advies
  • Hulpverleningszone Waasland (Brandweer) - gunstig advies onder voorwaarden
  • Wyre - gunstig advies onder voorwaarden
  • Fluvius - gedeeltelijk voorwaardelijk gunstig advies
  • Water-link - voorwaardelijk gunstig advies
  • Proximus - voorwaardelijk gunstig advies
  • Provincie Oost-Vlaanderen Waterbeleid - voorwaardelijk gunstig advies
  • Elia Asset - gedeeltelijk voorwaardelijk gunstig
  • Agentschap Wegen en Verkeer - voorwaardelijk gunstig advies


De aanvraag omvat volgende aanpassingen die betrekking hebben op de wegenis:

De bedrijfsverzamelgebouwen op de site zullen volledig ontsloten worden door een gevestigde erfdienstbaarheid 'recht van doorgang' via de Schaarbeekstraat. In samenspraak met het Agentschap Wegen en Verkeer (AWV) blijkt dit de meest verkeersveilige oplossing te zijn.
Enkel het voorziene nieuwe handelspand dat tegen gewestweg N419 (Krijgsbaan) gebouwd zal worden, zal nog ontsloten worden via de Krijgsbaan.
De bedrijfsverzamelgebouwen situeren zich langs een nog aan te leggen en volledig uit te rusten weg van het bedrijvenpark. Deze wegenis blijft privatief en krijgt een privatief gebruik in functie van het toekomstig KMO-park.

Bijkomend wordt er ook een weg voorzien met een privaat karakter die enkel bedoeld zal zijn voor fietsers en wandelaars die behoren tot het bestemmingsverkeer van het KMO-park. Het gaat dus niet om een trage verbinding voor alle fietsers en voetgangers, maar enkel voor traag bestemmingsverkeer in functie van het aangevraagde project met de nieuwe KMO-units, dus met louter lokaal, privaat gebruik.
In geval van calamiteiten kan deze doorsteek vanuit de Krijgsbaan naar de Schaarbeekstraat ook gebruikt worden voor de hulpdiensten. Deze doorsteek is 4 m breed ten behoeve van wagens van de hulpdiensten. De beide uiteinden van deze weg zijn in het midden afgeschermd met een wegneembaar paaltje (enkel weg te nemen door de hulpdiensten) zodat dit in hoofdzaak een trage doorgangsweg blijft voor fietsers en wandelaars die behoren tot het bestemmingsverkeer.

De aanvraag voor deze interne wegenis en bijhorende terreinaanleg (groenzones, buffer- & infiltratiezones en fietsverbindingen) is mede opgenomen in deze omgevingsaanvraag. 

Het openbaar onderzoek werd gehouden van 15-09-2025 tot en met 14-10-2025 en gaf aanleiding tot 3 identieke bezwaarschriften, die integraal handelen over de ontsluiting, met name: 

  1. de mate waarin het recht van overweg van het bouwterrein naar de Schaarbeekstraat ook geldt voor nieuwe bedrijvigheid en of (de breedte van) die overweg daar wel geschikt voor is; 
  2. het afsluiten van de bestaande ontsluiting naar de Krijgsbaan zou ingaan tegen afspraken met de aanpalende bedrijven; 
  3. het verzwaren van de uitweg naar de Schaarbeekstraat verhindert het bestaande kruisende verkeer tussen de achterliggende bedrijfsgebouwen. 

De bezwaren inzake de zaak der wegen kunnen als volgt worden behandeld: 

  1. dit bezwaar lijkt ongegrond: 
    het betreft geen stedenbouwkundige, maar een burgerrechtelijke kwestie. Terzijde kan worden opgemerkt dat dit wel effect kan hebben op de uitvoering van een eventuele omgevingsvergunning, maar de aanvraag bijkomende stukken heeft toegevoegd waaruit zou blijken dat dit burgerrechtelijk wel degelijk mogelijk is; 
  2. dit bezwaar lijkt ongegrond
    dat er enkel voor zachte weggebruikers (voetgangers en fietsers) een ontsluiting blijft bestaan naar gewestweg N419 (Krijgsbaan), is op basis van het (pre)advies van het Agentschap Wegen en Verkeer;
  3. dit bezwaar lijkt deels gegrond:
    Naar aanleiding van de bezwaren heeft de aanvrager om hieraan tegemoet te komen een aangepaste projectinhoudversie (PIV5) bezorgd via het Omgevingsloket. De aanvrager voorziet het plaatsen van signalisatie en wegmarkering die voorrang garandeert voor dit kruisende verkeer:
    (zie d.d. 10.12.2025 toegevoegde "bijlage 5")
    Deze aanpassing werd voorgelegd aan de gemeentelijke dienst mobiliteit en werd ongunstig beoordeeld. Zie bijlage van dit 'bijkomend advies dienst mobiliteit'.
    De GOA volgt het advies van dienst mobiliteit en merkt hierbij op dat de voorgestelde inrichting niet opgelegd zou kunnen worden als voorwaarde binnen deze aanvraag omdat dit geen betrekking heeft op het perceel van de aanvrager zelf. De aanvrager zou daarbij afhankelijk zijn van de toestemming van andere eigenaars. Dit is een burgerlijke kwestie die zij onderling kunnen regelen.


Aan de gemeenteraad wordt gevraagd om:

  1. het openbaar onderzoek te sluiten met kennisname van de 3 identiek ingediende bezwaarschriften;
  2. het wegtracé van de nieuwe wegenis, te Zwijndrecht en Melsele, Krijgsbaan 241 met bijhorende dwarsprofielen, zoals op de plannen ingetekend, goed te keuren; 
  3. de wegenis niet op te nemen bij het openbaar domein.

Juridische grond

Het Decreet Lokaal Bestuur;
Het Decreet Omgevingsvergunningen;
De Vlaamse Codex Ruimtelijke Ordening;

Adviezen

Mobiliteit Gunstig onder voorwaarden
Agentschap Wegen en Verkeer Gunstig onder voorwaarden

Besluit

De gemeenteraad beslist:

Artikel 1

het openbaar onderzoek te sluiten met kennisname van de 3 identiek ingediende bezwaarschriften.

Artikel 2

het wegtracé van de nieuwe wegenis, te Zwijndrecht en Melsele, Krijgsbaan 241 met bijhorende dwarsprofielen, zoals op de plannen ingetekend, goed te keuren.  

Artikel 3

de wegenis niet op te nemen bij het openbaar domein.