Terug
Gepubliceerd op 09/12/2025

2025_GR_00619 - Wegtracé voor wegenis- en rioleringswerken door Hectaar NV te Melsele - Goedkeuring

Gemeenteraad
wo 17/12/2025 - 19:30 Raadzaal
2025_GR_00619 - Wegtracé voor wegenis- en rioleringswerken door Hectaar NV te Melsele - Goedkeuring 2025_GR_00619 - Wegtracé voor wegenis- en rioleringswerken door Hectaar NV te Melsele - Goedkeuring

Motivering

Inhoudelijke toelichting

Aanvrager: HECTAAR NV, Armoedestraat 40 bus 51, 8800 Roeselare
Ontvangstdatum: 18 juli 2025
Uiterste beslissingsdatum: 3 februari 2026
Bouwplaats: Mirabellenlaan 23, 25, 27 en Braambessenlaan 3, 5, 7, 8, 9, 10, 12, 14, 16, 9120 Melsele

Onderwerp: een nieuwe verkaveling met aanleg van nieuwe wegenis en openbaar groen
3 bouwkavels langsheen nieuw aan te leggen wegenis als uitbreiding van de Mirabellenlaan en
9 bouwkavels + 7 loten voor gekoppelde overdekte autostaanplaatsen, langsheen nieuw aan te leggen wegenis als uitbreiding van de Braambessenlaan


De adviesinstanties verleenden alle een (voorwaardelijk) gunstig advies. 

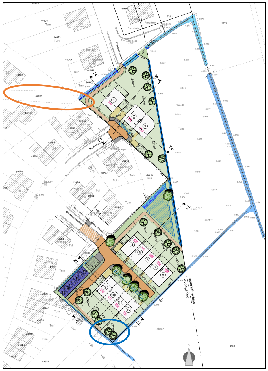
Inzake de overdracht in openbaar domein adviseert de Dienst Overheidsopdrachten en Juridische Zaken om géén trage weg richting Bosbessenlaan te voorzien (oranje cirkel hieronder), omdat het gemeentelijk perceel met nummer 442D3 slechts met één punt aan het projectterrein paalt. 
De Dienst Mobiliteit adviseert om dit wel te doen, omdat die verbinding is opgenomen in het door CBS (2021_CBS_03416) en GR (2021_GR_00261 d.d. 28 september 2021) goedgekeurde tragewegenplan en bij voorkeur meteen mee wordt gerealiseerd. 

De Dienst Ruimtelijke Ordening en Wonen volgt op dit punt het gemeenteraadsbesluit. Echter stelt de dienst voor om deze trage verbinding in de toekomst te realiseren indien de nodige stukken grond verworven zijn van de aangelanden. Zoals de Dienst Overheidsopdrachten en Juridische Zaken aanhaalt is de realisatie de dag van vandaag nog niet mogelijk omdat het slechts met één punt aan het projectterrein paalt.

De Dienst Mobiliteit vraagt daarnaast om 

  • op te leggen dat de trage weg achter lot 12 zuidwaarts moet worden doorgetrokken tot de grens met kadastraal perceel nr. 436B (blauwe cirkel hieronder):

De Dienst Ruimtelijke Ordening en Wonen sluit zich daarbij aan en stelt voor om dit op te nemen als voorwaarde.


Het openbaar onderzoek werd gehouden van 23 september 2025 tot en met 23 oktober 2025 en gaf aanleiding tot 13 bezwaarschriften, waarvan de volgende argumenten handelen over de zaak der wegen:  

  1. Mobiliteitsimpact tijdens de werffase door o.m. de aanzienlijke grondverzet werkzaamheden. De wegen zijn te smal voor uitbreiding ervan.
    Het verkeer is op meerdere punten in de Spoorweglaan al verzadigd; 
  2. De inplanting van de 7 autostaanplaatsen (voorzien van oplaadpunten), te dicht bij de bestaande woningen en de elektriciteitscabine, brand kan overslaan. 

Die bezwaren inzake de zaak der wegen kunnen als volgt worden behandeld: 

  1. Ongegrond
    De terzake deskundige gemeentelijke Dienst Mobiliteit heeft de aanvraag ten gronde bekeken en heeft daar op dit punt geen opmerkingen bij;
  2. Ongegrond
    De inplanting van de carports op de loten 13-19 voldoet aan de stedenbouwkundige en burgerrechtelijke wetgeving. Visueel liggen de trouwens in de lijn van de achterbouw op Mirabellenlaan 11. Hoe dan ook verleende de Hulpverleningszone Waasland een gunstig (brandveiligheids)advies over deze aanvraag. 


Aan de gemeenteraad wordt gevraagd om:

  1. het openbaar onderzoek te sluiten met kennisname van de ingediende 13 bezwaarschriften;
  2. het wegtracé van de nieuwe wegenis, voor de nieuwe verkaveling met aanleg nieuwe wegenis, te Melsele, uitbreiding Mirabellenlaan en Braambessenlaan, met bijhorende modeldwarsprofielen, zoals op de plannen ingetekend, goed te keuren en op te nemen in het openbaar domein; 
  3. daarbij op te leggen dat de trage weg achter lot 12 zuidwaarts moet worden doorgetrokken tot de grens met kadastraal perceel nr. 436B.

Juridische grond

Gelet op de VCRO
Gelet op het decreet lokaal bestuur
Gelet op het omgevingsvergunningdecreet
Gelet op de gemeentelijke algemene stedenbouwkundige verordening

Adviezen

Mobiliteit Gunstig onder voorwaarden
Hulpverleningszone Waasland Gunstig onder voorwaarden
Technische dienst Wegen Gunstig onder voorwaarden
Dienst Overheidsopdrachten en Juridische Zaken Gunstig onder voorwaarden

Besluit

De gemeenteraad beslist:

Artikel 1

het openbaar onderzoek te sluiten met kennisname van de ingediende 13 bezwaarschriften.

Artikel 2

het wegtracé van de nieuwe wegenis, voor de nieuwe verkaveling met aanleg nieuwe wegenis,  te Melsele uitbreiding Mirabellenlaan en Braambessenlaan, met bijhorende modeldwarsprofielen, zoals op de plannen ingetekend, goed te keuren en op te nemen in het openbaar domein.

Artikel 3

daarbij op te leggen dat de trage weg achter lot 12 zuidwaarts moet worden doorgetrokken tot de grens met kadastraal perceel nr. 436B.